
1. 概述及用途
MNS型低壓抽出式開關柜是我廠根據市場需求而開發的新一代低壓開關柜。產品技術標準符合IEC439M《低壓成套開關設備和控制設備》;GB7251.1-1997《低壓成套開關設備》等標準要求。
MNS型低壓抽出式開關柜適用于發電廠、變電站、石油化工、冶金軋鋼,輕工紡織等廠礦企業和住宅小區,高層建筑等場所,作為交流50~60Hz,額定工作電壓660V及以下的電力系統的配電設備的電能轉達換、分配及控制之用。
2. 使用條件
2.1 周圍空氣溫度不高于+40℃,不低于-5℃,并且24h內其平均溫度不高于+35℃。
2.2 大氣條件:空氣清潔,相對溫度在最高溫度為+40℃時不超過50%,在較低溫度時允許有較高的相對濕度,例如+20℃時為90%,但應考慮到由于溫度變化,有可能會偶然地產生適度的凝露。
2.3 海拔高度不超過2000m。
2.4 本裝置適應于以下溫度的運輸和儲存過程:-25℃至55℃的范圍之間,在短時間內(不 超過24h)可達+70℃,在這些極限溫度下裝置不應遭到任何不可恢復的損傷,而且在正常的條件下應能正常工作。
2.5 如果上述使用條件不能滿足時,應由用戶和制造廠協商解決。
2.6 當本裝置使用海上石油和核電站時,應另行簽訂技術協議。
3. 結構特征
裝置的基本柜架為組合裝配結構,柜架的全部結構都經過鍍鋅處理,通過自攻鎖緊螺釘或8.8級六角螺釘緊固互相連接成基本柜架,再按方案變化需要,加上相應的門,封板,隔板,安裝支架,以及母線,功能單元等零部件,組裝成一臺完整的裝置,裝置內零部件尺寸,隔室尺寸實行模數化(模數單位E=25mm,下同)
3.1 動力配電中心(以下簡稱PC)
3.1.1 PC柜內分成四個隔室:
水平母線隔室:在柜的后部;
功能單元隔室:在柜前上部或柜前左邊;
電纜隔室:在柜前下部或柜前右邊;
控制回路隔室:在柜前上部;
3.1.2 柜內安裝的框架式斷路器,均能在關門狀態下實現柜外電動操作,視察斷路器的分合閘狀態和根據操作機構與門的位置關系,判斷出斷路器在試驗位置還是在工作位置。
3.1.3 主電路與輔助電路之間設計成分隔結構,儀表、信號燈和按鈕等組成的輔助電路單元,均安裝于塑料板上,板后有一用阻燃型聚胺脂發泡塑料做成的罩殼與主電路分離。
3.2 抽出式電動機控制中心和小電流的動力配電中心(以下簡稱為抽出式MCC)
3.2.1 抽出式MCC柜內分成三個隔室,即柜后部的水平母線隔室,柜前部左邊的功能單元隔室,柜前部右邊的電纜隔室。水平母線室與功能單元隔室之間用阻燃型發泡塑料制成的功能壁分隔,電纜隔室與水平母線隔室,功能單元隔室之間用鋼板分隔。
3.2.2抽出式MCC有單面操作和雙面操作二種結構。
3.2.3抽出式MCC有五種標準尺寸的抽屜,它們分別是8E/4,8E/2,8E,16E和24E,其中8E/4和8E/2二種抽屜的結構是用模制的阻燃型塑料件的鋁合金型材組成。(4個8E/4抽屜2個8E/2抽屜組成一個8E高度的間隔)。功能單元隔室的總高度為72E。
3.2.4 五種標準尺寸的抽屜,一般有16個二次隔離觸頭引出,如果需要,除8E/4抽屜外,其它四種抽屜可增加到32個。每個靜觸頭的接線端頭同時可接三根導線。(二根用TT1-2.5/2.8×0.8型插套式端頭接線,另一根用1T2.5-2型插針式端頭接線。上述二種端頭由制造廠隨產品提供適量的附件和冷軋鉗)。
3.2.5 通過機械聯鎖裝置的操作程序性,只有當主回路和輔助回路全部斷開的狀態下才能移動抽屜,機械聯鎖裝置使抽屜具有移動位置,試驗位置,分斷位置,邊接位置和分離位置,并用相應的符號標志出來,見圖1、2。
機械聯鎖裝置上的操作手柄和主斷路器的操作手柄,能同時被三把掛鎖鎖住。
3.3 可移式電動機控制中心和小電流動力配電中心(以下簡稱可移式MCC)
3.3.1 可移式MCC的柜體結構特征同3.2.1條和3.2.2條。
3.3.2功能單元設計成可移式結構,功能單元與垂直母線的邊接,采用一次隔離觸頭,即使與其連接的電路是帶電的,也可以從設備中完整地取出和放回該功能單元。另一端固定式結構。
3.3.3 可移式MCC的功能單元分為3E,6E,8E,16E,24E,32E和40E。功能單元隔室總高度也是72E。(見圖4)
圖1:8E/4和8E/2抽屜操作手柄位置圖

圖2:8E、16E、24E抽屜操作手柄位置圖

3.4 母線系統
3.4.1 水平母線(L1、L2、L3)
水平母線安裝于柜后獨立的母線隔室中,它有二個可選擇的安裝位置,即柜高的三分之一或三分之二處,母線可按需要裝于上部或下部,也可以上下二組同時安裝,二組母線可以單獨使用,也可以并聯使用。
每相母線由2根或4根或8根母線并聯,母排截面有10×30×2;10×60×2;10×80×2;10×60×4;10×80×2×2和10×60×2(mm)六種。
3.4.2 垂直母線
垂直母線為50×30×5的角尺型銅母線,它被嵌裝于用阻燃型塑料制造的功能壁中,帶電部分的防護達1P20。
3.4.3 中心母線(N線)和中性保護母線(PE線或PEN線)
中性母線和中性保護母線平行地安裝在功能單元隔室的下部和垂直安裝在電纜室中,N線與PE線之間如用絕緣子相隔,則N線與PE分別使用,二者之間如用導體短接,即成PEN線。
3.5 保護接地系統
裝置的保護電路由單獨裝設的并貫穿于整個排列長度的PE線(或PEN線)和可導電的結構件二部分組成。裝置中金屬結構件,除外表的門和封板外,其余都經過鍍鋅處理,在結構件的連接處,都經過精心設計,使其能通過一定的短路電流。
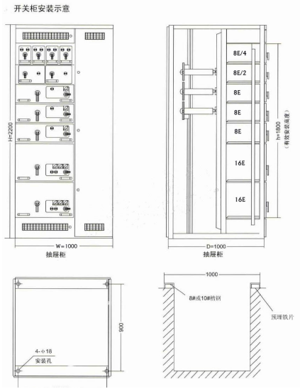
圖3:開關柜的外形尺寸

4.技術參數 |
5.安裝、使用、維修
5.1 開關柜的外形尺寸見圖3,安裝參考圖見圖4。
5.2產品即可吊裝亦可鏟車運輸。
5.3當裝置運抵目的地后,首先應檢查包裝箱是否完工整,若裝置不立即安裝,應存放在干燥清潔之處。
5.4 裝置推薦為離墻安裝式,安裝基本平面要求平整,基礎槽鋼的水平誤差為1/1000,總長偏差±3mm。
5.5 裝置就位后,首先應檢查每臺裝置與底面是否垂直,否則允許用墊塊校正然后將整個排列的底框用連接板連接起來,安裝好排列螺釘,再與基礎槽鋼進行焊接,見圖11。
5.6 產品在安裝和檢修后進行下列檢查方能投入運行。
5.6.1檢查電器元件有無損壞,動作是否靈活。
5.6.2檢查緊固件是否旋緊(含電器元件上不接線部位)。
5.6.3耐壓試驗或絕緣電阻測試合格。
5.6.4產品在使用中應定期保潔,對堵塞通風氣道的灰塵及雜物須經常清理。
圖4:安裝示意圖

下一篇:GCK型低壓抽出式開關柜