
一、概述:
XGN-12型交流高壓金屬封閉開關設備適用于三相交流50HZ,額定電壓12KV的戶內高壓配電裝置。廣泛應用于工業及民用電纜環網及供電終端,特別適用于城市居民小區、小型二次變電所、開閉所、工礦企業、商場、機場、地鐵、中小型電廠、醫院、體育場、鐵路、隧道等電路系統中作為接收和分配電能之用,是最新一代空氣絕緣的金屬封閉開關設備,具有結構簡單、操作靈活、安裝方便、聯鎖可靠等特點,。
二、性能特點
1、內置真空斷路器,采用真空滅弧室、免維護、壽命長、操作次數可達到10000次;也可根據用戶要求內置負荷開關或熔斷器。
2、采用先進科學的輕型設計、體積小;
3、配帶智能控制器,可設置過流保護、速斷保護、失壓自動跳閘、來電延時自動重合、瞬時性故障自動復位、永久性故障自動閉鎖等多種保護功能,并且可實時上傳各種數據。
4、配置聯鎖裝置:具有防止帶負荷分、合隔離開關;防止誤分、誤合斷路器或負荷開關;防止接地開關處于閉合位置時送電;防止在帶電時誤合接地開關;防止誤入帶電隔室等功能
5、上下隔離開關均選用具有雙斷口的GN30-10(D)旋轉隔離開關(額定電流3150A的開關柜下隔離選用GN22-10非旋轉型)。
三、型號說明
四、使用環境條件:
1、戶內、環境溫度:上限+40℃ 下限-15℃
2、相對濕度:日平均值不大于95%,月平均值不大于90%
3、海拔高度:不超過1000M
4、地震烈度:不超過8度
5、無火災、爆炸危險、嚴重污染、化學腐蝕及劇烈震動的場所。
五、主要技術參數:

六、典型操作簡介:
1、停電操作
分斷斷路器―――將閉鎖機構上的小手柄扳到分斷閉鎖位置―――將閉鎖機構專用操作棒插入閉鎖機構上的下隔離操作孔內,從上往下拉,拉到下隔離分斷位置―――取出操作棒,再插入閉鎖機構上的上隔離操作孔內,從上往下拉,拉到上隔離分閘位置,再將操作手柄插入閉鎖機構的接地開關操作孔內,從下往上推,使接地開關合閘―――將閉鎖機構上的小手柄扳到檢修位置―――打開前門―――取出后門程序鎖鑰匙,打開后門―――停電操作完畢。
2、送電操作
將后門關好鎖定,取出鑰匙并放入前門內―――關閉前門,將閉鎖機構上的小手柄扳到“分斷閉鎖”位置,自動鎖定了前門―――將操作棒插入閉鎖機構上的接地開關操作孔內,從上往下拉,使接地開關分閘―――取出操作棒,插入閉鎖機構上的上隔離孔內,從下往上推,推到上隔離閉合位置―――取出操作棒插入閉鎖機構上的下隔離操作孔內,從下往上推,推倒下隔離閉合位置―――將手柄扳到“工作”位置,這時可將斷路器合閘。
七、開關柜典型方案的結構及外形尺寸:

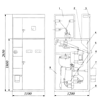
XGN2-12(Z)07方案結構及外形尺寸圖
1.母線室 2.壓力釋放通道 3.儀表室 4.組合開關室 5.手力操作及連鎖機構 6.主開關室
7.電磁或彈簧機構 8.接地母線 9.電纜室

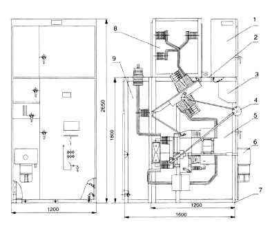
XGN2-12(Z)08方案結構及外形尺寸圖
1.儀表室 2.壓力釋放通道 3.組合開關室 4.手力操作及連鎖機構 5.主開關室
6.電磁操動機構 7.接地母線 8.母線室 9.附柜
九、訂貨須知
定貨時用戶需提供下列資料:
1、 主接線方案編號及單線系統圖;
2、 開關柜排列圖、平面布置圖(或并柜圖);
3、 二次回路接線原理圖、端子排列圖。
4、 開關柜主要元器件的型號、規格、數量;
5、 特殊器件請提供廠家及相應技術資料;
6、 主母線的規格、材質,柜體顏色等;
7、 需要母線橋時,提供跨距和高度尺寸;
8、 備品、備件的名稱及數量;
9、 開關柜使用在特殊條件時應在訂貨時提出。
名稱 | 器件代碼 | 型號規格 | 數量 | 單位
| 備注 |
隔離開關 | QS | GN30-10/630 | 1 | 臺 | 長葛 |
高壓真空斷路器 | QF | VS1-1250/31.5 | 1 | 臺 | 森源 |
電流互感器 | TA1 2 | LA10 | 3 | 臺 | 瑞特 |
電壓互感器 | TV | JDZ-10 10K/0.1K | 3 | 個 | 瑞特 |
高壓熔斷器 | FU | RN2-6/0.5A | 3 | 個 | 寶光 |
穿墻套管 | / | CB-10Q/400 | 1 | 套 | 德力西 |
機械閉鎖 | / | JSXGN-10S | 1 | 套 | 江山 |
低壓熔斷器 | 1-5FU | RT18-32 6A | 2 | 個 | 德力西 |
傳感器 | CG | DXN8B | 3 | 個 | 長葛 |
高壓帶電顯示 | DXG | DXN8B-71 | 1 | 個 | 長葛 |
柜內照明 | 1MD | CM-1 AC220V | 1 | 套 | 德力西 |
避雷器 | F | HY2.5W5-8/19 | 1 | 套 | 德力西 |
零序互感器 | TA3 | LJΦ75 | 1 | 臺 | 瑞特 |
柜體 | XGN | 1100*1200*2650 | 1 | 臺 | 締造 |
輔件 | 一批 | 締造 | |||
柜體尺寸 | 2650mm×1150mm×1250mm | ||||
XGN2-12高壓進,出線柜(主要器件明細)
上一篇:YB系列戶外預裝式變電站
下一篇:KYN28-12型高壓開關柜