
一、產品簡介
35kV縱旋移開式開關柜,是一種小型化、智能化、節能環保、安全可靠型的開關設備,特別在智能化、節能環保、節省占地面積等方面具有明顯的優勢。
KYN88-40.5kV 縱旋移開式戶內交流金屬封閉開關設備,是在KYN88-12縱旋移開式開關設備結構的基礎上,對開關柜整體電場進一步優化的、自主研發的、具有自主知識產權的成套配電設備。開創了40.5kV中壓開關設備小型化、中置式、智能化、高可靠和經濟性設計的新思路新方法。
產品適用于額定電壓40.5kV、額定頻率50Hz的戶內三相交流電力系統,是工礦企業、變電所及發電廠等受、配電系統進行控制、保護、監測的成套配電設備。

此前已取得發明專利的12kV隔離真空斷路器及其成套開關設備,通過*********技術鑒定的結論為“原創型國際領先的科技成果”。本系列化項目采用獨特的功能復合化的創新設計新理念,開創了40.5kV中壓開關設備小型化、中置式、智能化、高可靠和經濟性設計的新思路新方法,也賦予了環保型空氣絕緣介質開關設備的新前景。

三相極柱結構緊湊,通過極柱旋轉,兼具有斷路器和隔離開關功能,既是移開式手車,又相當于固定式斷路器與隔離開關,改變了傳統斷路器單一功能的結構布置方式。

雙功能掘作集成系統聯鎖;雙功能操作機構以其合理巧妙地結構布置,將隔離與斷路器的自身聯鎖與手車的鎖定以及對接地開關的聯鎖集成布置于一體,不需要其它附加聯鎖系統,操作與維護以機構為中樞,十分簡單方便。實現斷路器分合與隔離旋轉兩個動作的集合;在國內外為首次研究設計了同軸“縱向驅動與橫向旋轉功能轉換副”,實現了本體旋轉,機構固定不動的新穎構想。
隔離真空斷路器,是以一只渦卷彈簧作為儲能元件,即是分閘簧又是合閘簧,出力穩定,合閘功小,壽命長,占用空間小,結構簡單。以平面封閉式槽凸輪為驅動元件,把驅動滾輪始終限制在凸輪槽內,可以有效抑制合閘彈跳和分閘過沖,做到了不加設緩沖器,以滑道盤滑塊及提升桿組成儲能聯鎖裝置,結構巧妙簡單,實現了對儲能狀態的準確、可靠的控制與聯鎖等。
二、產品主要特點
(1)秉承了縱旋隔離真空斷路器的功能復合、縱向布置,隔離斷口可視的特點。
(2)縱旋隔離真空斷路器及柜內一次導電回路布置簡單,電場均勻,絕緣耐壓水平高
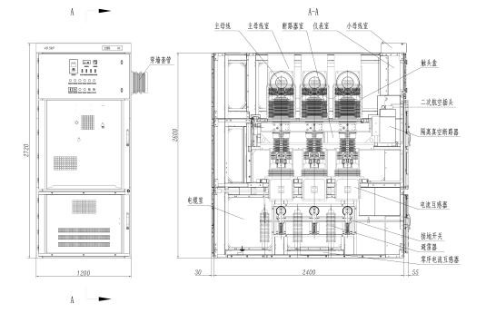
(3)柜內導體相間、對地的空氣絕緣距離均大于300mm。柜體寬1200mm,柜體深2400mm,柜體高2600mm。開關設備既可雙面維護,又可靠墻安裝。
(4)可遠程電動操作真空斷路器、隔離開關、接地開關,設備動作全景感知可視化監測,方便故障線路快速隔離,非故障線路快速恢復,實時在線溫升監測、機械特性監測、狀態監測、局放監測、遠程計算機監控、手機APP監控功能,滿足無人值守變電站,以及“一鍵順控”智能電網的要求。

產品結構描述:
(1)開關柜為全金屬封閉結構。金屬隔板和活門將柜體自上而下分隔為小母線室、智能化儀表室、主母線室、隔離真空斷路器室和電纜室,壓力釋放通道位于柜體后上方。
(2)開關柜主回路采用后、中、前的縱向布置方式。觸頭盒與主母線、隔離斷路器、電流互感器、電纜引線端頭和接地開關等主要次元器件從上至下直接聯結。
(3)開關柜既可以靠墻安裝,又可雙面維護,安裝維護極為方便。
(4)開關柜充分采用小型化、中置式和復合功能結構件。隔離真空斷路器可以縱向旋轉和移開,空氣絕緣距離均大于300mm!

三、產品性能特點優勢
3.1、【散熱性能】
KYN88-40.5縱旋式開關柜導電路徑短,搭接面少,散熱效果好,不存在散熱死區。

3.2、【手車靈活性】
KYN88-40.5縱旋移開式開關柜,手車中置式,隔離斷口的產生不依靠手車的移動,只是三相極柱旋轉便可實現,運動質量小,機械強度和剛度適中,上下觸頭受力均勻,機械穩定性好。

3.3、【絕緣性能、隔離斷口】
KYN88-40.5 縱旋移開式開關柜手車縱向布置,充分利用了柜子縱向深度,相間、對地空氣靜距離均大于300mm,無需增加絕緣隔板,絕緣性能高,安全可靠。

3.4、【電場性能】
KYN88-40.5縱旋移開式開關柜導電路徑T字型布置,上下觸頭盒距離遠,極柱和觸頭盒都有屏蔽網,電場布置均勻,絕緣耐壓水平高。

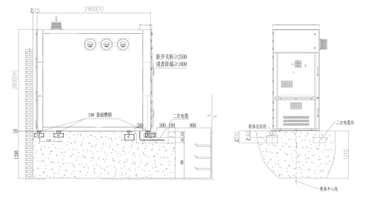
四、產品外形及安裝基礎示意圖
4.1電纜進出線(靠墻安裝)

4.2電纜進出線(非靠墻安裝)

4.3架空進出線(靠墻安裝)

4.4架空進出線(非靠墻安裝)

五、設備的主要技術參數

上一篇:XGN2-12型高壓開關柜